Perspective 3D extérieure :

La perspective 3D extérieure représente une reproduction photoréaliste complète d’un projet architectural. En plus de présenter avec précision les volumes et les détails, son intégration dans un contexte environnemental confère une inspiration supplémentaire aux futurs acquéreurs et utilisateurs. Cette représentation répond spécifiquement à un besoin fondamental : exprimer de manière réfléchie une idée ou une vision de projet à travers la beauté de sa conception

Lumière :

Le travail de la lumière en perspectives 3D est crucial pour créer des rendus réalistes. En manipulant les ombres, les reflets et les nuances, nous donnons vie à vos modèles et les intégrons harmonieusement dans leur environnement. Notre expertise permet de jouer avec la lumière de manière créative, mettant en valeur chaque détail de votre projet pour une expérience visuelle immersive.

Perspective 3D intérieure :

La perspective 3D intérieure se concentre sur les espaces intérieurs d’un projet. En plus de présenter les volumes avec précision, elle offre une représentation fidèle de l’aménagement des espaces. Cela permet de visualiser l’utilisation de chaque pièce concernée et offre aux maîtres d’ouvrage la possibilité de s’identifier à leur futur habitat.

L’ambiance :

L’ambiance dans les rendus architecturaux est principalement créée par l’éclairage, les matériaux et les textures utilisés. L’éclairage peut varier pour représenter différentes heures du jour ou des sources lumineuses spécifiques, tandis que les choix de matériaux et de textures influencent l’atmosphère générale du rendu, qu’elle soit rustique, moderne, chaleureuse ou industrielle.

Intégration paysagère :

Indispensable pour toute demande de permis de construire, cette composante paysagère revêt également une grande utilité dans le cadre de vos présentations de projets, concours ou encore pour les panneaux de promotion immobilière.

Volumétrie :

La volumétrie en infographie 3D architecturale vise à créer des représentations visuelles réalistes des bâtiments et des espaces, facilitant ainsi la compréhension et la communication des concepts architecturaux.

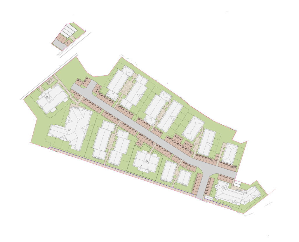
Plan de masse :

Le but d’un plan de masse en architecture est de représenter la disposition des éléments d’un projet sur un terrain, facilitant ainsi la visualisation et la communication des intentions de conception.

Insertion plan de masse :

Un plan de masse peut inclure des informations telles que les contours du terrain, les bâtiments existants, les voies d’accès, les zones de végétation, les infrastructures, etc